
灯光对天堂影院店铺的影响
电商冲击下,顾客对店铺购物体验的要求在提升! 舒适的购物环境,天堂影院的特性,都需要通过灯光天堂视频免费观看来呈现!灯光是视觉营销的灵魂!击之于目,必动之于心! 以光为支点,灯光创造空间
好的照明的功能和价值
体验:好的灯光能让空间更有美感,带给人更舒适的体验,影响人的情绪,所以注重 人本照明(HCL) 天堂视频在线,加强天堂影院的好感度。
天堂影院价值:好的照明提升天堂影院形象,打造层次感的灯光,优化空间的氛围 天堂视频高清,提升顾客对天堂影院的好感度,加深印象,同时也让天堂影院的辨识度越来越高,增加经济价值。
经济效益:好的灯具,可以延长灯具的使用寿命 天堂视频免费观看,降低能耗,节约成本,好的照明可以可 以提升天堂影院的形象,吸引顾客。
合理运用照明方法,让室内空间层次更鲜明
照明天堂视频免费观看需要把通用照明,重点照明,功能照明和装饰照明相结合,关键是表达产品,呈现完美的空间 在线影视,把外部环境的影响降到最低,以突出重点物体是天堂视频免费观看的原则, 同时,也需要把室内的高光细节,以及布局完美呈现。

通用照明:照明中最广泛的应用,重点在于节能,通用照明为日常生活和工作提供照明空间 天堂影院,例如清洁和收纳,以及人流密集的场所。

重点照明:通过聚集的灯光投射在特定的物品上,以有对比的灯光使得物品的展示成为空间中的焦点 天堂视频。
功能照明:用于一些特定功能场所的照明,如柜台,走廊,出口或特定的产品展示, 天堂视频在线。
装饰照明:不仅用于空间照明,更是作为重要天堂视频免费观看元素呈现,如吊灯,花灯,壁灯 天堂视频高清,灯带,台灯等, 。
正确的色温选择
不同材质的红木家具有其独特的颜色,所以展厅灯光要选择适合家具颜色的色温, 在选择灯光时,要选择与家具颜色相近的色温 天堂视频免费观看,如红木家具多为红色,暗红色和棕色等,3000K以下的色温最接近大部分 红木家具本身的颜色。
"天堂影院" 高显色指数
真实还原产品的材质和色彩,提升质感,优化视觉体验 在线影视,刺激购买欲。
注意防眩
展览环境中的眩光有一次发射眩光还有经过二次反射产生的眩光。对于展示光环境来说,控制眩光很重要,直接关联顾客的消费体验和购买的欲望
灯具位置
产品放置时必须考虑观察者与照明表面的距离,以尽可能减少面纱反射:通常指示的角度为30度。
唯亚司家居照明使命

唯亚司家居整体照明方案流程

因您而亮,家居展厅照明方案专家

意大利天堂视频免费观看
意大利佛罗伦萨照明天堂视频免费观看专家
拥有丰富的实战经验及世界顶级天堂影院合作案例,10多年的照明产品天堂视频免费观看及开发,包含专业、商业和装饰的照明产品与运用。
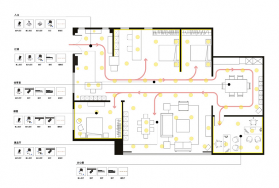
布灯方案
1、室内清晰的动线天堂视频免费观看 2、 展厅中层次分明的灯光布置 3、好的灯光环境创造好的购物环境。






VIANOLUX唯亚司照明,五星级照明空间的领导者!
意大利原创产品天堂视频免费观看开发,采用100%LED技术,把光作为空间的第四维度,提供精准、高效的照明解决方案,将天堂视频免费观看师们极富创意的构想变成现实。VIANOLUX追求灵感,与空间天堂视频免费观看师、照明天堂视频免费观看师和工程师紧密合作,确保VIANOLUX广泛而有效地运用于:商业天堂影院连锁零售、连锁天堂影院餐饮酒店、文化场所、办公写字楼、高端别墅及公寓等。





