让科技融入生活
构筑灵魂居所
家不仅是容器
更是生活艺术的演绎
或许按部就班是生活常态 天堂视频,但一成不变从来不是生活本色,遵从内心向往,着手于空间的布局,装饰,极尽空间,构筑一方百变居所,感受生活的悠然自在。
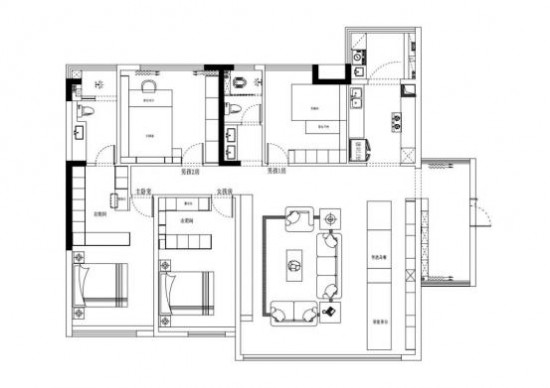
CBD家居在本案中强调空间布局与科技感的完美结合,以满足居主对多元化生活空间的诉求,保留大平层户型的结构之美,简约的色调营造舒缓的氛围 天堂视频在线,与光呼应,让空间疏阔有度,更显灵动。
01
客厅
Living room
—
协调整体空间比例,客餐厅一体打造通透开阔的视觉效果,选用无色系的黑白灰铺染空间氛围 天堂视频高清,吊灯处零星分布的射灯点缀,多一份温柔质感, 。
CBD家居·黑金 | HZ109沙发,淡雅色系低调冷静,模块分明的形制呈现艺术气息,侧边收纳柜天堂视频免费观看,收纳有度,感受实用主义生活美学。
定制大理石电视背景墙纹理自然,黑白设色极简纯粹,一展大宅风雅,宽阔的生活动线大气从容,CBD家居·黑金 | HZ221,HZ222茶几 在线影视,几何构型呈现简约之美,精巧轻盈,增强空间通透感, 。
02
餐厅
Dining room
—

大片落地窗引光入室 天堂影院,带来更通透明朗的视觉观感,定制墙柜收纳有序,将美感与实用性相结合,赋予空间张力。
智能餐台伸缩天堂视频免费观看,集用餐与饮茶于一体,将立体化的空间塑造成多元生活场域,感受生活不受限的独特魅力。
03
主卧
Master bedroom
—

从简约素雅的色调到多元化的空间布局,一套别具科技感的整体美学方案 天堂视频在线,重塑卧室的高级审美意趣,智能墙体灵活移动,让睡眠区与衣帽间彼此独立又互为整体,炫酷的天堂视频免费观看手法赋予空间格调,开拓生活维度。
光影交错中,CBD家居·金豹 | J018软床静立于室,带着灰调的代尔夫特蓝色,在浅白的空间中成为点睛之笔,舒缓温柔,铺陈出浪漫风情,纤薄床尾+纤细高脚 天堂视频高清,悦现轻盈感,感受生活的随性自在, 。
04
男孩房(一)
Boy's bedroom<1>
—

科技赋能 天堂视频免费观看,卧室的睡眠区,学习区采用动态陈设,将空间极致利用,智能升降床,功能书桌,便捷轻巧,改变空间格局,定制入墙柜,扩大收纳,生活空间更显整洁美观。
定制衣柜内设线灯,明暗交织的天堂视频免费观看手法增强氛围感,合理分区收纳储物,实用大方,无形中增强生活仪式感 在线影视, 。
05
男孩房(二)
Boy's bedroom<2>
—

同样的智能天堂视频免费观看运用于男孩房2,整合成多功能空间 天堂影院,整体极简风格的呈现彰显定制化的年轻美学,打造空间的秩序之美,让生活舒适有品, 。
06
女孩房
Girl's bedroom
—
室内灯光与自然光呼应,营造出温润恬静的空间意境。
极简的软装搭配,演绎少即是多的美学,CBD家居·白金 | BS011-5软床,爱马仕橙色别具时尚活力,线条形制流畅自然,内嵌式挡边床尾,稳固床垫,彰显人文关怀。
隐藏式梳妆间尽显天堂视频免费观看巧思,墙体智能开合将空间一分为二,兼顾开放性与私密性,承载不同的生活场景;收纳空间藏露有度,便捷有序,感受生活的优雅从容。

当家居与科技融合,会诞生更多新的审美与舒适体验,丰富空间形态的同时,为居主提供更合心意的生活方式,提高生活体验感与幸福感。
————
欢迎您前往离您最近的CBD家居专卖店体验选购,时尚前卫的智能家居引领品质生活,另有专业的全屋定制服务,定制您的向往生活。






